
ABOUT AEVEC
AEVEC Ltd is a UK-based engineering and CAD company delivering precise, build-ready technical documentation for bridges, buildings, and infrastructure projects. With over 20 years of professional experience, we support your projects from concept to completion.
Our Core Values
-
Precision: Every drawing meets the highest standards.
-
Collaboration: Working closely with clients and partners.
-
Creativity: Innovative solutions for complex projects.
-
Excellence: Commitment to quality.
-
Continuous Development: Up-to-date with AutoCAD, Revit, SolidWorks.
What We Offer
-
2D/3D CAD drafting and modeling
-
Construction ready documentation
-
Sketch to digital conversion
-
Temporary or permanent project support
-
Consulting for design and construction
Why Choose AEVEC
-
Technical expertise & precision
-
Reliable and timely delivery
-
Flexible project solutions
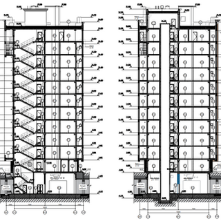
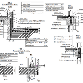
DRAFTING PORTFOLIO - RESIDENTIAL

DRAFTING PORTFOLIO - INFRASTRUCTURE

MEET OUR TEAM

CVA

CEM

CNT



















